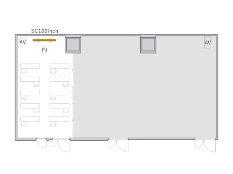
10名から30名までの会議やセミナーに最適な会議室です。スタイリッシュな黒の壁面が上質感を演出。コンパクトな部屋ながら、一面窓と3.5mある天井で開放感すら感じられます。隣のRoom Aをメイン会場として、Room Bをゆったり使える控室やセミナー後のパーティー会場としてのご利用もおすすめです。

小規模の会議やセミナーに最適。天井が高く大きな窓があり開放的な空間です。

セミナー前の打合せスペースや、講師控室としてもご利用いただけます。
| 収容人数 | スクール:30名 島:島27名 口の字:24名 |
||||||||
|---|---|---|---|---|---|---|---|---|---|
| 面積 | 54㎡ | ||||||||
| 天井高 | 3.5m | ||||||||
| 料金 |
|
空室状況・ご内覧のご相談はお気軽に





赤外線ワイヤレスマイク ハンド型
赤外線ワイヤレスマイク ピン型
有線マイク
CDプレイヤー
高速インターネット回線
ハンガーラック
傘立て
ゴミ箱
置型プロジェクター
自立式スクリーン
パーテーション
ノートパソコン
レーザーポインター(クリッカー付)
コンファレンス専用の高速インターネット回線(NUROアクセススタンダード)をご用意。通信環境を心配すること無くWEB配信セミナーを実施できます。
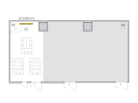
| ご使用人数 | 20名 |
|---|---|
| 使用レイアウト | スクール形式 |

フロアコンセントやWi-Fiも完備しており、パソコン持込の会議でも快適にご使用いただけます。
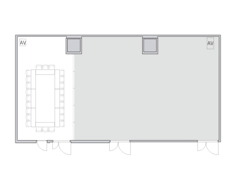
| ご使用人数 | 15名 |
|---|---|
| 使用レイアウト | 口の字形式 |
資料ダウンロード
会場図面や電源図面など、情報を集約した資料を無料でダウンロードできます。
施設のご使用に関するQ&Aはこちらよくあるご質問