3.5mある天井と白・グレー・黒を基調としたデザインの開放感と落ち着きのある空間です。高輝度の天吊レーザープロジェクターや170インチ大型スクリーン完備で後方からでも見えやすく、プレゼンテーションやセミナーなどに最適な環境です。高速インターネット回線、ワイヤレスマイク、演台、ステージなど、会議に必要な備品の多くは無料。操作性に優れる機材がスムーズなイベント進行をサポートします。

クッション性が高い椅子は長時間のセミナーや会議でも疲れにくく、参加者のストレスを軽減します。

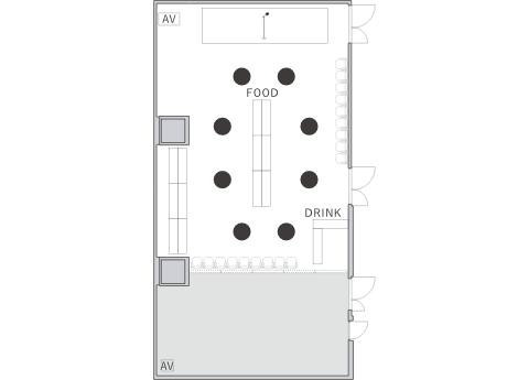
開放的な空間は50~70名規模のセミナーやグループワークに最適です。
| 収容人数 | スクール:72名 島:81名 口の字:48名 |
||||||||
|---|---|---|---|---|---|---|---|---|---|
| 面積 | 145㎡ | ||||||||
| 天井高 | 3.5m | ||||||||
| 料金 |
|
空室状況・ご内覧のご相談はお気軽に





B帯デジタルワイヤレスマイク
B帯デジタルワイヤレスマイク
有線マイク
CDプレイヤー(AV卓内蔵)
BD/DVDプレイヤー(AV卓内蔵)
天吊スクリーン
映像スイッチャー(AV卓内蔵)
高速インターネット回線
ステージ
演台
司会台
ホワイトボード
ハンガーラック
傘立て
ゴミ箱
天吊レーザープロジェクター
スポットライト
パーテーション
ノートパソコン
レーザーポインター(クリッカー付)
クッション性の高いイスは疲れにくく、長時間の研修でも集中しやすい環境です。フロア内にはお手洗い、自販機、喫煙所を完備しており、休憩時の移動もスムーズです。
| ご使用人数 | 50名 |
|---|---|
| 使用レイアウト | 島形式 |

ボリュームのあるお食事から交流会向けの軽食まで、ご要望に合わせてケータリングを提案します。料理は1人前ずつ小分けにして提供するなど、衛生面に配慮した形での実施も可能です。
| ご使用人数 | 50名 |
|---|---|
| 使用レイアウト | パーティー形式 |
資料ダウンロード
会場図面や電源図面など、情報を集約した資料を無料でダウンロードできます。
施設のご使用に関するQ&Aはこちらよくあるご質問